www.reedb.com 0315 V 16.3.e   العقارات والممتلكات التجارية والشقق السكنية powered by  reedb.com

Wohnung Top W7 - Zwangsversteigerung

reedb-id: 1332896

مسطحة Stans مزاد قضائي النمسا

مسطحة Stans مزاد قضائي النمسا

مسطحة Stans مزاد قضائي النمسا

مسطحة Stans مزاد قضائي النمسا

مسطحة Stans مزاد قضائي النمسا
QR-CODE ...
مسطحة Stans مزاد قضائي النمسا | QR-CODE ...
الأسطح
مساحة المعيشة78,49 م²
وصف
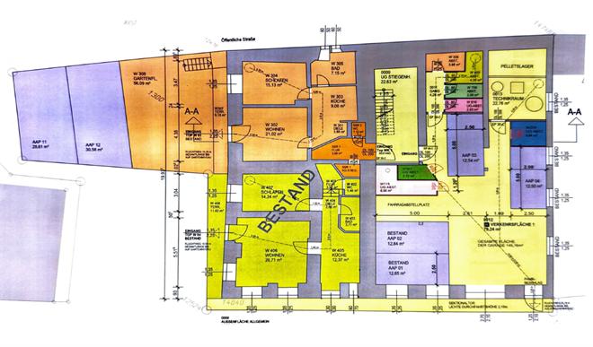
Die bewertungsgegenständliche Liegenschaft in EZ 682, welche sich im Gemeindegebiet von Stans be-findet, stellt eine rein wohnwirtschaftlich genutzte Liegenschaft dar. Insgesamt befinden sich Im Objekt (Oberdorf 82) neun Wohneinheiten, welche sich über vier Geschosse verteilen.
Das Objekt kann über das jeweils plantechnische Unter- oder Erdgeschoss (beide jeweils ebenerdig zur Straße) erschlossen werden. Im Erdgeschoss befinden sich neben dem zum Allgemeineigentum gehören-den Müllraum die gemeinschaftlichen Gangflächen sowie der Garagenstellplatz Top AAP9. Die bewertungsgegenständliche Wohnung befindet sich im plantechnischen Dachgeschoss 1 und 2 des Wohnhauses und ist über ein gemeinschaftlich genutztes Treppenhaus, ausgehend vom Erdgeschoss (Zugang neben den Garagen, nordseitig), erreichbar. Die Wohnung besteht aus einer offenen Wohnküche, einem Abstell-raum, einem Schlafzimmer, einem Badezimmer, einem separaten WC sowie einer Diele. Zusätzlich verfügt sie über einen Balkon mit Ost-Ausrichtung. Ferner verfügt die Wohnung Top W7 über ein eigenes Kellerabteil im Untergeschoss, welches sich in räumlicher Nähe zu weiteren Stellplätzen, dem Pellets-Lager sowie dem Technikraum befindet.

Vadium: 27.000,00 EUR
Geringstes Gebot: 135.000,00 EUR
الموقع
#منطقةشواز
تحديد المسؤولية
جميع الأرقام تقريبية وقد تختلف عن القيم الفعلية.

Die Daten zu diesem Objekt /Immobilie wurden manuell (nicht vom Anbieter) eingepflegt.
Für Vollständigkeit und Richtigkeit der Angaben kann keine Haftung übernommen werden.
Die aktuellen Daten entnehmen Sie gegebenenfalls von der angegebenen Seite oder setzen
Sie sich mit dem Anbieter in Verbindung.